Home /MC-06
20ft shipping
container home is an alternate open space that offers an
abundance of room for living. It will open up your possibilities when it comes
to your modern, off grid lifestyle. It’s portable, eco-friendly, affordable and
above all, it has everything you need! It can be easily adapted to any setting.
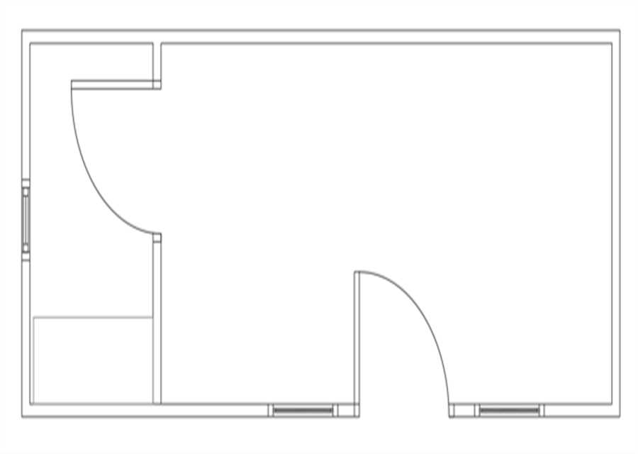
20ft Container
Dimensions:
Length: 6m (20ft) – Height: 2.5m(8’2’’ft) – Width: 2.4m(8ft) and 15sqm
(161sqft) unit
one bathroom
One
bedroom kitchen and living space
windows & doors
Full electrical installation
Full plumbing system
1 Floor
1 Bedroom
1 Bathroom
2.5m(8’2’’ft)
2.4m(8ft)
15sqm(161sqft)
1 Floor
1 Bedroom
1 Bathroom
2.5m(8’2’’ft)
2.4m(8ft)
15sqm(161sqft)
1 Floor
1 Bedroom
1 Bathroom
2.9m(9’48’’ft)
2.4m(8ft)
30sqm(323sqft)
1 Floor
1 Bedroom
1 Bathroom
2.5m(8’2’’ft)
2.4m(8ft)
15sqm(161sqft)
1 Floor
1 Bedroom
1 Bathroom
2.9m(9’48’’ft)
2.4m(8ft)
30sqm(323sqft)
1 Floor
1 Bedroom
1 Bathroom
2.5m(8’2’’ft)
2.4m(8ft)
15sqm(161sqft)