Home /FRAMOD-05
20ft and 40ft extandable shipping
container house is an alternate open space that offers an
abundance of room for living. It will open up your possibilities when it comes
to your modern, off grid lifestyle. It’s portable, eco-friendly, affordable and
above all, it has everything you need! It can be easily adapted to any setting.
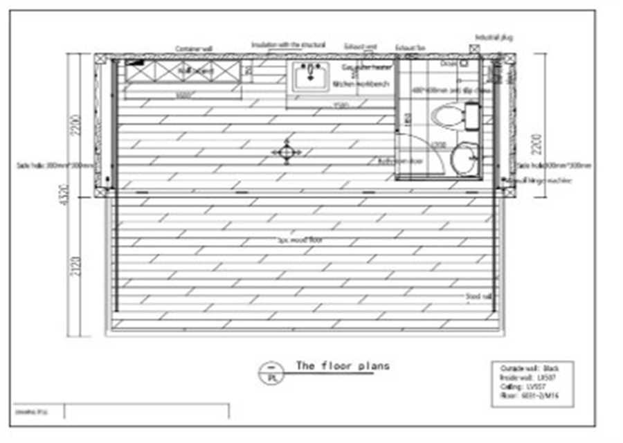
20ft Container
Dimensions:
Length: 6m (20ft) – Height: 2.9m(9’48’’ft) – Width: 2.4m(8ft) and 15sqm (160sqft) unit
and: 12.1m (40ft) – Height: 2.9m(9’48’’ft) – Width: 2.4m(8ft) and 30sqm (323sqft) unit
1 Floor
1 Bedroom
1 Bathroom
2.9m(9’48’’ft)
2.4m(8ft)
15sqm(160sqft)
1 Floor
1 Bedroom
1 Bathroom
2.9m(9’48’’ft)
2.4m(8ft)
15sqm(160sqft)
1 Floor
1 Bedroom
1 Bathroom
2.9m(9’48’’ft)
2.4m(8ft)
15sqm (160sqft)
1 Floor
1 Bedroom
1 Bathroom
2.9m(9’48’’ft)
2.4m(8ft)
30sqm(323sqft)